Umfang und Flächeninhalt vom Rechteck
Einführung
1. Welche Vierecke sind Rechtecke?
2. Schreibe fünf Beispiele von Rechtecken, die man in unserer Umgebung finden kann, in dein Heft.
Flächeninhalt
1. Welche der Rechecke haben gleichen Flächeninhalt?
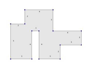
2. Hier handelt es sich zwar nicht um ein Rechteck, kannst du dennoch den Flächeninhalt bestimmen?
Die Fläche A eines Rechtecks mit den Seitenlängen a und b erhält man, wenn man a und b multipliziert.
3. Zeichne vier verschiedene Rechtecke in dein Heft, die alle gleichen Flächeninhalt haben.
Umfang
1. Welche der Rechtecke haben gleichen Umfang?
2. Zeichne vier verschiedene Rechtecke in dein Heft, die alle gleichen Umfang haben.
Gemischte Aufgaben zum Flächeninhalt und Umfang
1. Wenn du auf diesen Link klickst, kannst du online ein paar Aufgaben zum Flächeninhalt und Umfang bearbeiten.
2. In unteren Bild kannst du die Höhe und Breite des Rechtecks mittels der Schieberegler verändern. Versuche nun das Rechteck so zu verändern, dass der Flächeninhalt und der Umfang des Rechtecks die gleiche Maßzahl haben. Wie viele verschiedene Möglichkeiten findest du?

Schon fertig?
1. Dann versuche die Oberfläche des Würfels zu berechnen (Kantenlänge ist 1 cm).
Weißt du auch, wie lange alle Kanten zusammen sind?
2. Um welchen Faktor ändert sich der Umfang, und um welchen Faktor ändert sich der Flächeninhalt eines Rechtecks, wenn man alle Seitenlängen verdoppelt?
3.
| Zeichne zu jedem der drei Fälle ein Rechteck in dei Heft. | |||
|---|---|---|---|
|
|
Fläche ist | Umfang ist | |
Quiz
Kreuze alle Antworten an, welche deiner Meinung nach richtig sind.





